Приточно-вытяжная установка Salda RIS 700 HW EKO 3.0 с рекуперацией тепла очищает, нагревает и подает свежий воздух в вентилируемое помещение. Принцип утилизации тепла / холода позволяет минимизировать расходы на нагрев свежего воздуха и снизить установочную мощность системы вентиляции. Пластинчатый теплообменник с защитой от замерзания с использованием моторизованного клапана обеспечивает эффективность теплоотдачи до 90%.
Отличительные особенности вентиляционной установки Salda RIS 700 HW EKO 3.0: - RIS - Пластинчатый рекуператор перекрестного тока с высоким тепловым КПД и эффективностью рекуперации до 90%.
- H - Напольный горизонтальный монтаж. Установку можно монтировать как внутри помещения, так и снаружи (например, на крыше).
- W - Встроенный водяной нагреватель для подогрева воздуха.
- EKO - установка укомплектована энергоэффективными и бесшумными вентиляторами с ЕС-двигателями.
- 3.0 - плата управления PRV V2.
- Моторизированный байпас.
- Фильтры высокой очистки: вытяжной и приточный - M5. Датчик загрязнения фильтров.
- Все блоки установок Salda RIS HE-HW EKO 3.0 полностью оснащены автоматическими регуляторами. Интегрирована системы Plug-and-Play.
- Возможность подключения к системе "умный дом".
- Корпус изготовлен из двойной стали с порошковым покрытием. Акустическая и теплоизоляция стенок толщиной 30 мм.
- Распашные дверцы для доступа к обслуживанию и монтажу.
- Отдельный отсек на верхней части устройства предоставляет быстрый доступ к плате управления.
- Поддон для сбора конденсата из нержавеющей стали.
- Опционально подключаются пульты дистанционного управления Flex, Stouch, SA-Control, а также фильтры различной степени очистки. Управление через ПК осуществляет через контроллер РС МВ-Gateway. Дополнительно могут быть установлены датчик СО2, датчик влажности и автоматический контроль климата.


Функции приточно-вытяжной установки Salda RIS 700 HW EKO 3.0. Вентиляционная установка имеет встроенный функционал и автоматику, доступ к максимальному функционалу осуществляется установкой дополнительного пульта управления (Flex, Stouch, SA-Control).
Технические характеристики приточно-вытяжной установки Salda RIS 700 HW EKO 3.0:
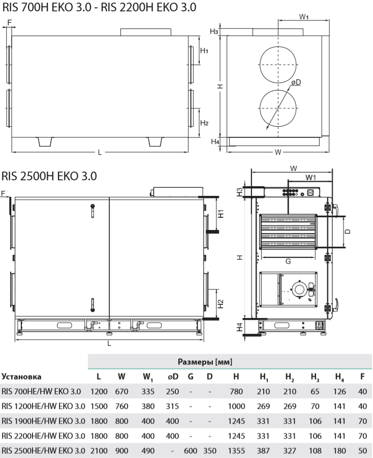
Габаритные размеры приточно-вытяжной установки Salda RIS 700 HW EKO 3.0: 
Технические характеристики
| Серия | RIS HW EKO |
| Расход воздуха | 750 м3/ч |
| Потребляемая мощность | 340 Вт |
| Уровень шума | 56 дБ |
| Тип рекуператора | Пластинчатый |
| Материал рекуператора | Алюминиевый |
| Эффективность рекуперации | 90 % |
| Тип монтажа | Напольный |
| Подключение воздуховодов | Горизонтальное |
| Размер подключения воздуховодов | 250 мм |
| Min. температура воздуха | -5 С |
| Max. температура воздуха | +40 С |
| Тип нагревателя | Водяной |
| Сила тока | 2,80 А |
| Частота вращения | 3230 мин-1 |
| Напряжение питания | 1~230 В/Гц |
| Тип управления | Электронное |
| Вес | 110 кг |
| Страна производства | Литва |